Sold STC
Key Features
The property is located in a non-estate position in the centre of the village with great access to the Primary School or facilities on the High Street. The ground floor has been extended across the rear the full width of the house to create a larger living room and kitchen/diner. The accommodation benefits from high ceilings with picture rails in the bedrooms and dining room, plus new double glazing installed in 2021.
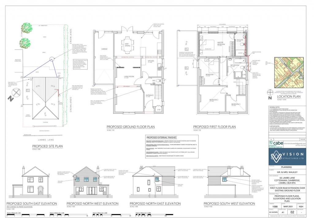
Planning permission was previously granted for a second storey to be added over the existing ground floor extension, to create four bedrooms on the first floor with an ensuite to the master bedroom. Full details can be found on the South Cambs planning portal using reference: 21/02349/HFUL
The ground floor starts with a recessed front porch with a brick archway and a stained glass front door. An entrance hall with built in cupboard plus understairs storage, a cloakroom with WC and washbasin, a dining room/play room with fireplace, and living room with fireplace and French doors to the garden. The kitchen has been refitted and comprises a range of units, splashback tiling, integrated oven and hob, fridge/freezer, dishwasher, and 1 ½ bowl sink, with space for a dining table at the rear and a glazed door to the garden.
On the first floor there are three bedrooms - Bedrooms 1 and 2 are double rooms with a third single bedroom - and a four-piece family bathroom with half-tiled walls and a shower cubicle that was refitted in 2019.
Outside there is a front garden enclosed with a brick wall, a gravelled driveway providing parking for one car and a single garage with powered up & over garage door. The private rear garden is laid to lawn with a patio at the back of the house, a second patio in the rear corner, and a well.
LOCATION
Cottenham is one of the largest villages in Cambridgeshire with many facilities available and a wide range of properties, from period townhouses on the high street to more modern developments on the outskirts of the village. Transport links are excellent as the village is approximately 3 miles (4.83 kilometres) from the A10 and A14. In addition, the village has a regular bus service to both Cambridge and Ely.
Cottenham Primary School is located on Lambs Lane and Cottenham Village College provides both secondary schooling and a sixth form, as well as adult learning classes and numerous after-school events.
Facilities include a gym, sports hall, tennis courts and sports field which are commonly used by the local community. Cottenham has a broad range of amenities including two doctors’ surgeries, a dental surgery, a library, two mini supermarkets, a newsagent with a post office, pharmacy, butchers, bakers, community coffee shop, fish & chip shop, a hairdressers, barbers and beauty salon, two pubs, an Indian restaurant and a village hall.
The property is located in a non-estate position in the centre of the village with great access to the Primary School or facilities on the High Street. The ground floor has been extended across the rear the full width of the house to create a larger living room and kitchen/diner. The accommodation benefits from high ceilings with picture rails in the bedrooms and dining room, plus new double glazing installed in 2021.
Planning permission was previously granted for a second storey to be added over the existing ground floor extension, to create four bedrooms on the first floor with an ensuite to the master bedroom. Full details can be found on the South Cambs planning portal using reference: 21/02349/HFUL
The ground floor starts with a recessed front porch with a brick archway and a stained glass front door. An entrance hall with built in cupboard plus understairs storage, a cloakroom with WC and washbasin, a dining room/play room with fireplace, and living room with fireplace and French doors to the garden. The kitchen has been refitted and comprises a range of units, splashback tiling, integrated oven and hob, fridge/freezer, dishwasher, and 1 ½ bowl sink, with space for a dining table at the rear and a glazed door to the garden.
On the first floor there are three bedrooms - Bedrooms 1 and 2 are double rooms with a third single bedroom - and a four-piece family bathroom with half-tiled walls and a shower cubicle that was refitted in 2019.
Outside there is a front garden enclosed with a brick wall, a gravelled driveway providing parking for one car and a single garage with powered up & over garage door. The private rear garden is laid to lawn with a patio at the back of the house, a second patio in the rear corner, and a well.
LOCATION
Cottenham is one of the largest villages in Cambridgeshire with many facilities available and a wide range of properties, from period townhouses on the high street to more modern developments on the outskirts of the village. Transport links are excellent as the village is approximately 3 miles (4.83 kilometres) from the A10 and A14. In addition, the village has a regular bus service to both Cambridge and Ely.
Cottenham Primary School is located on Lambs Lane and Cottenham Village College provides both secondary schooling and a sixth form, as well as adult learning classes and numerous after-school events.
Facilities include a gym, sports hall, tennis courts and sports field which are commonly used by the local community. Cottenham has a broad range of amenities including two doctors’ surgeries, a dental surgery, a library, two mini supermarkets, a newsagent with a post office, pharmacy, butchers, bakers, community coffee shop, fish & chip shop, a hairdressers, barbers and beauty salon, two pubs, an Indian restaurant and a village hall.