£340,000
Key Features
A chain-free semi-detached house found in the popular village of Longstanton.
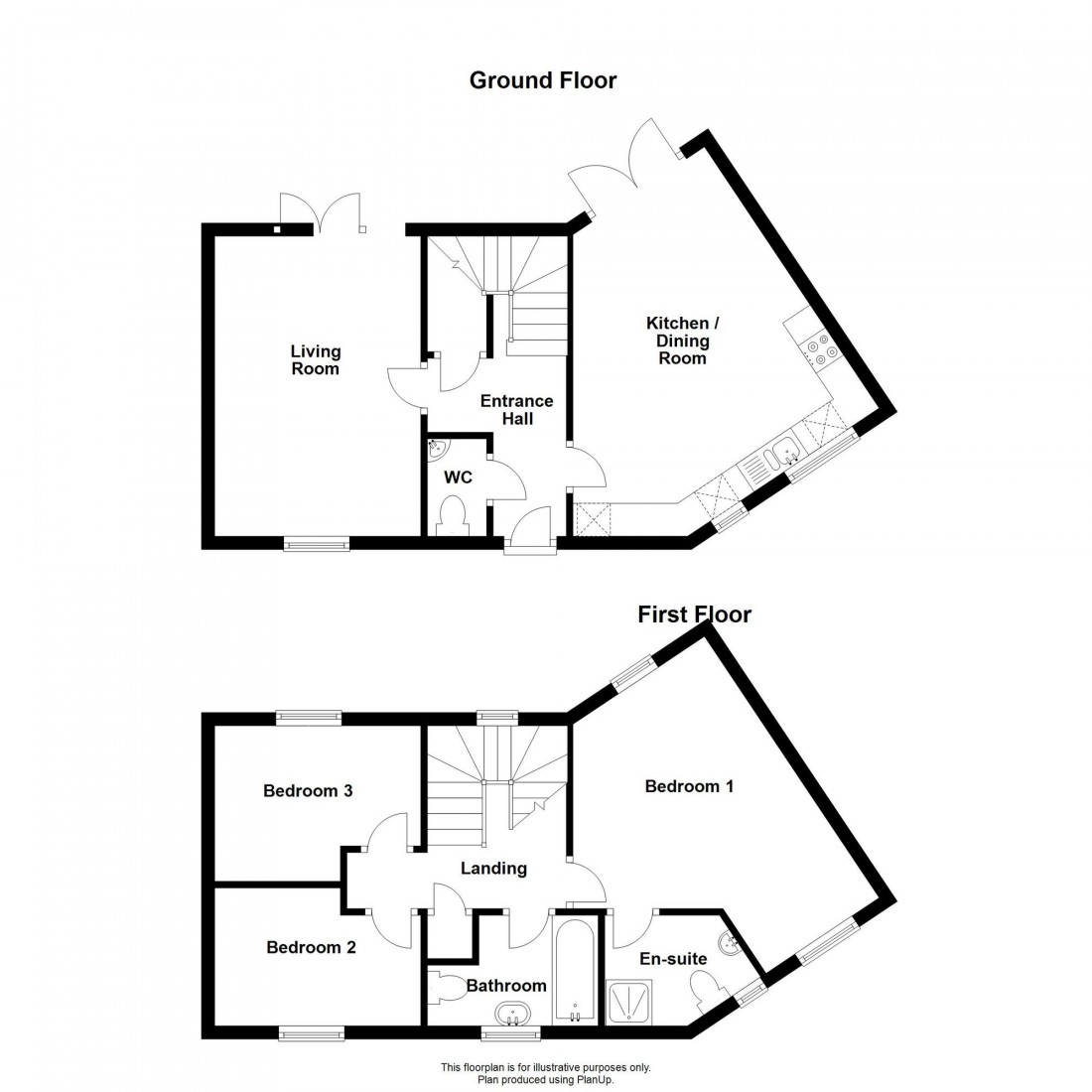
The ground floor offers a welcoming entrance hall with a useful under-stairs storage cupboard and a convenient cloakroom. The bright and airy living room features French doors opening directly onto the rear garden. To the rear, a generously proportioned kitchen/dining room is fitted with an integrated oven and gas hob, with ample space for freestanding appliances including a washing machine, dishwasher, fridge/freezer and tumble dryer. There is also plenty of room for a six-seater dining table, with additional French doors providing further access to the garden.
Upstairs, the first floor comprises a central landing with an airing cupboard and a partially tiled family bathroom. The impressive dual-aspect main bedroom benefits from its own ensuite shower room, while two further bedrooms offer flexible accommodation for family living, guests or home working.
Externally, the property enjoys a low-maintenance rear garden, complete with a patio area and timber shed, as well as a gated side access leading to the allocated parking area.
LOCATION
Longstanton is a well-connected and fast-growing village located directly on the Guided Busway, providing exceptional access to Cambridge and St Ives. Its position near the A14 offers additional convenience for road commuters. The Busway cycle path — a fully segregated, traffic-free route — is extremely popular with cyclists, connecting Longstanton safely to Cambridge, St Ives and the new town of Northstowe.
The village has expanded significantly in recent years, offering a blend of traditional homes and modern developments. Amenities include a Co-op, cafés, takeaway, medical centre, pharmacy, hairdressers, golf course, sports fields, village hall and church. Nearby Northstowe enhances local facilities further with new retail, community spaces, sports pitches and upcoming leisure developments.
Hatton Park Primary School serves Longstanton and is well regarded (Ofsted Good). Secondary education is provided by Northstowe Secondary College (Ofsted Good) or Swavesey Village College (Ofsted Outstanding). The Guided Busway’s cycle path makes school travel particularly safe and convenient for older students.
A chain-free semi-detached house found in the popular village of Longstanton.
The ground floor offers a welcoming entrance hall with a useful under-stairs storage cupboard and a convenient cloakroom. The bright and airy living room features French doors opening directly onto the rear garden. To the rear, a generously proportioned kitchen/dining room is fitted with an integrated oven and gas hob, with ample space for freestanding appliances including a washing machine, dishwasher, fridge/freezer and tumble dryer. There is also plenty of room for a six-seater dining table, with additional French doors providing further access to the garden.
Upstairs, the first floor comprises a central landing with an airing cupboard and a partially tiled family bathroom. The impressive dual-aspect main bedroom benefits from its own ensuite shower room, while two further bedrooms offer flexible accommodation for family living, guests or home working.
Externally, the property enjoys a low-maintenance rear garden, complete with a patio area and timber shed, as well as a gated side access leading to the allocated parking area.
LOCATION
Longstanton is a well-connected and fast-growing village located directly on the Guided Busway, providing exceptional access to Cambridge and St Ives. Its position near the A14 offers additional convenience for road commuters. The Busway cycle path — a fully segregated, traffic-free route — is extremely popular with cyclists, connecting Longstanton safely to Cambridge, St Ives and the new town of Northstowe.
The village has expanded significantly in recent years, offering a blend of traditional homes and modern developments. Amenities include a Co-op, cafés, takeaway, medical centre, pharmacy, hairdressers, golf course, sports fields, village hall and church. Nearby Northstowe enhances local facilities further with new retail, community spaces, sports pitches and upcoming leisure developments.
Hatton Park Primary School serves Longstanton and is well regarded (Ofsted Good). Secondary education is provided by Northstowe Secondary College (Ofsted Good) or Swavesey Village College (Ofsted Outstanding). The Guided Busway’s cycle path makes school travel particularly safe and convenient for older students.