Haden Way, Willingham, CB24
Haden Way, Willingham, CB24
Haden Way, Willingham, CB24
Haden Way, Willingham, CB24
Haden Way, Willingham, CB24
Haden Way, Willingham, CB24

£650,000

Haden Way, Willingham, CB24

Rare Self-Build Opportunity – Prime Building Plot for Four Executive Barn-Style Homes

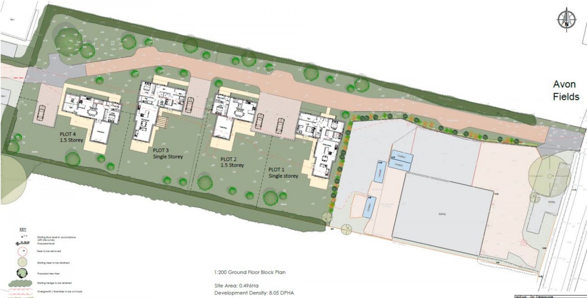
An exciting opportunity to acquire a generous building plot with full planning permission for the development of four substantial self-build properties on the edge of the highly sought-after village of Willingham, Cambridgeshire.

  • Planning permission granted for 4 detached homes

  • Up to 250 sqm (2,690+ sq. ft.) per property

  • 1.5 storey barn-style designs with 5 bedrooms

  • Double garages and large private gardens

  • Attractive edge-of-village location with countryside views

  • Ideal for self-builders, developers

Please use reference 24/02619/OUT to view full planning decision on South Cambs Planning Portal.

LOCATION

Willingham is approximately 12 miles northwest of Cambridge and offers excellent access into Cambridge via the recently expanded and improved A14, which leads onto M11 south and A1 north.

Popular for both cyclists and runners, the guided busway also provides a well-used cycle path parallel to the bus route. This is a direct route into Cambridge and stops at Cambridge North, the city centre and Addenbrooke's. With a Tesco superstore, petrol station and precinct of shops in nearby Bar Hill. 

The village is well served with facilities including two village stores, two churches, two public houses, bakery, butchers and farm shop, doctor's surgery, pharmacy, library, takeaway, cafe, hairdressers, car repairs, primary school and nurseries, post office, auction rooms with tea rooms and an outside eatery, independent veterinary clinic, pet supplies store, a number of small businesses in the village centre. 

There is also a recreation ground with play area, football pitches, bowls club, and sports pavilion, as well as a community centre, community orchard and social club.

The local primary school is located in the village and has recently been rated as 'Good' by Ofsted. The village is in the catchment area for Cottenham Village College and Sixth Form and the recently opened Northstowe Secondary School.

Property Description

Rare Self-Build Opportunity – Prime Building Plot for Four Executive Barn-Style Homes

An exciting opportunity to acquire a generous building plot with full planning permission for the development of four substantial self-build properties on the edge of the highly sought-after village of Willingham, Cambridgeshire.

  • Planning permission granted for 4 detached homes

  • Up to 250 sqm (2,690+ sq. ft.) per property

  • 1.5 storey barn-style designs with 5 bedrooms

  • Double garages and large private gardens

  • Attractive edge-of-village location with countryside views

  • Ideal for self-builders, developers

Please use reference 24/02619/OUT to view full planning decision on South Cambs Planning Portal.

LOCATION

Willingham is approximately 12 miles northwest of Cambridge and offers excellent access into Cambridge via the recently expanded and improved A14, which leads onto M11 south and A1 north.

Popular for both cyclists and runners, the guided busway also provides a well-used cycle path parallel to the bus route. This is a direct route into Cambridge and stops at Cambridge North, the city centre and Addenbrooke's. With a Tesco superstore, petrol station and precinct of shops in nearby Bar Hill. 

The village is well served with facilities including two village stores, two churches, two public houses, bakery, butchers and farm shop, doctor's surgery, pharmacy, library, takeaway, cafe, hairdressers, car repairs, primary school and nurseries, post office, auction rooms with tea rooms and an outside eatery, independent veterinary clinic, pet supplies store, a number of small businesses in the village centre. 

There is also a recreation ground with play area, football pitches, bowls club, and sports pavilion, as well as a community centre, community orchard and social club.

The local primary school is located in the village and has recently been rated as 'Good' by Ofsted. The village is in the catchment area for Cottenham Village College and Sixth Form and the recently opened Northstowe Secondary School.

Area Information