Sold STC

The Lanes, Over, CB24

  • 4
  • 2
  • 2

Key Features

  • Substantial High Quality New Home
  • 10 Year New Build Warranty As Of 2020
  • 302 Sqm, EPC B
  • Solar Panels and Battery Totally 14.4kWh
  • Electric car charger
  • Detached Annexe
  • Swavesey VC Catchment
  • Guided Bus Stop Swavesey

The property is entered via a welcoming entrance hall featuring solid oak internal doors, a striking oak and glass staircase leading to a galleried first-floor landing, inset ceiling spotlights and ceramic tiled flooring with underfloor heating. A useful study is positioned at the front of the property, ideal for home working or equally could become a snug or family room.

The elegant living room enjoys full-height feature windows, a fireplace complete with a popular log burning stove with slate hearth and timber mantle. Oak sliding doors open into the impressive open-plan kitchen, dining and family room. This stunning space forms the heart of the home, fitted with a comprehensive range of high-gloss fitted units with Corian work surfaces, a range of integrated appliances which include an AEG oven, a combination microwave oven and an induction hob, with an extractor. A central island with additional storage and wine fridge and bi-folding doors opening onto the rear garden. Underfloor heating runs throughout the tiled floor, and a door leads to a separate utility room, with additional storage units and space for a washing machine and tumble dryer, a wall-mounted boiler and access to the driveway and garage. A contemporary ground-floor cloakroom completes the downstairs accommodation.

The first floor offers four generous double bedrooms, with immaculate decoration throughout. The principal bedroom benefits from a stylish en-suite shower room, while the remaining bedrooms are served by a modern, high-quality family bathroom, featuring twin sinks with vanity units and a walk-in shower and freestanding bath. The galleried landing adds a sense of space and light and provides access to loft storage.

There are fitted bespoke shutters to the living room, study/playroom, all bedrooms and the galleried landing.

Externally, the property is approached via a gravel driveway providing ample off-road parking with dual entrance, access to a brick-built garage with electric door, power and lighting, an electric car charger and a bank of solar panels with battery included in the sale. The tidy and enclosed rear garden features an extensive slate patio and a generous expanse of lawn, ideal for entertaining and family enjoyment.

A particular highlight of the property is the detached annexe, offering well-appointed, fully independent accommodation. The annexe comprises an open-plan living/dining space and French doors to the garden, a double bedroom and a modern shower room, making it perfect for guests, extended family or home working. The current vendors are using this space as a home office and games room.

LOCATION

Over is a popular and well-served village situated around ten miles northwest of Cambridge and five miles from St Ives. It offers the perfect mix of village charm and modern convenience, with a good range of local amenities including a convenience store, post office, café, pub, and community centre. The village also benefits from a recreation ground, sports clubs, and scenic walks along the River Great Ouse and the surrounding countryside, providing plenty of opportunities for outdoor leisure.

Transport links from Over are excellent, making it ideal for commuters. The nearby A14 gives easy access to Cambridge, Huntingdon, and the M11, while the Cambridgeshire Guided Busway runs from the neighbouring village of Swavesey, offering fast and reliable connections to Cambridge city centre, St Ives, and Addenbrooke’s Hospital. There are also regular bus services linking Over to nearby villages and towns, as well as cycle routes that connect to Cambridge and the wider area.

Families are well catered for with Over Primary School located in the village and rated highly by Ofsted. Older students typically attend Swavesey Village College, an outstanding secondary school with a sixth form and excellent reputation.

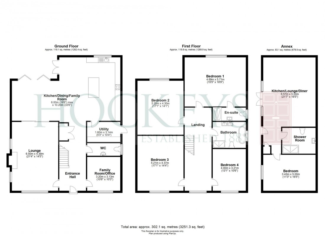
Floorplans

Floorplan for The Lanes, Over, CB24

EPC

EPC for The Lanes, Over, CB24

Property Description

The property is entered via a welcoming entrance hall featuring solid oak internal doors, a striking oak and glass staircase leading to a galleried first-floor landing, inset ceiling spotlights and ceramic tiled flooring with underfloor heating. A useful study is positioned at the front of the property, ideal for home working or equally could become a snug or family room.

The elegant living room enjoys full-height feature windows, a fireplace complete with a popular log burning stove with slate hearth and timber mantle. Oak sliding doors open into the impressive open-plan kitchen, dining and family room. This stunning space forms the heart of the home, fitted with a comprehensive range of high-gloss fitted units with Corian work surfaces, a range of integrated appliances which include an AEG oven, a combination microwave oven and an induction hob, with an extractor. A central island with additional storage and wine fridge and bi-folding doors opening onto the rear garden. Underfloor heating runs throughout the tiled floor, and a door leads to a separate utility room, with additional storage units and space for a washing machine and tumble dryer, a wall-mounted boiler and access to the driveway and garage. A contemporary ground-floor cloakroom completes the downstairs accommodation.

The first floor offers four generous double bedrooms, with immaculate decoration throughout. The principal bedroom benefits from a stylish en-suite shower room, while the remaining bedrooms are served by a modern, high-quality family bathroom, featuring twin sinks with vanity units and a walk-in shower and freestanding bath. The galleried landing adds a sense of space and light and provides access to loft storage.

There are fitted bespoke shutters to the living room, study/playroom, all bedrooms and the galleried landing.

Externally, the property is approached via a gravel driveway providing ample off-road parking with dual entrance, access to a brick-built garage with electric door, power and lighting, an electric car charger and a bank of solar panels with battery included in the sale. The tidy and enclosed rear garden features an extensive slate patio and a generous expanse of lawn, ideal for entertaining and family enjoyment.

A particular highlight of the property is the detached annexe, offering well-appointed, fully independent accommodation. The annexe comprises an open-plan living/dining space and French doors to the garden, a double bedroom and a modern shower room, making it perfect for guests, extended family or home working. The current vendors are using this space as a home office and games room.

LOCATION

Over is a popular and well-served village situated around ten miles northwest of Cambridge and five miles from St Ives. It offers the perfect mix of village charm and modern convenience, with a good range of local amenities including a convenience store, post office, café, pub, and community centre. The village also benefits from a recreation ground, sports clubs, and scenic walks along the River Great Ouse and the surrounding countryside, providing plenty of opportunities for outdoor leisure.

Transport links from Over are excellent, making it ideal for commuters. The nearby A14 gives easy access to Cambridge, Huntingdon, and the M11, while the Cambridgeshire Guided Busway runs from the neighbouring village of Swavesey, offering fast and reliable connections to Cambridge city centre, St Ives, and Addenbrooke’s Hospital. There are also regular bus services linking Over to nearby villages and towns, as well as cycle routes that connect to Cambridge and the wider area.

Families are well catered for with Over Primary School located in the village and rated highly by Ofsted. Older students typically attend Swavesey Village College, an outstanding secondary school with a sixth form and excellent reputation.

Floorplans

Floorplan for The Lanes, Over, CB24

EPC

EPC for The Lanes, Over, CB24

Area Information