Sold STC

Fen End, Over, CB24

  • 4
  • 2
  • 2

Key Features

  • EPC B

PLOT 11 with double garage - A small and exclusive development of high quality and bespoke designed semi and detached homes, surrounding a small green and with countryside views to the rear aspect. Based in South Cambridge, Granary Developments are an established, independent building firm specializing in producing high quality new homes. By selecting traditional materials, the exteriors are comfortingly familiar often with double fronted designs and sash style windows, combining very considered and well planned interiors which are tailored to modern day living. This family run business prides itself on building superb properties, with a clear eye for detail and a confidence the standard will surpass expectations. Please note, these images are for illustration purposes only and measurements may vary.

The popular village of Over lies approximately 10 miles (16.09 kilometres) north-west of the university city of Cambridge, providing easy access to A1 and M11. The nearest stop for the Guided Busway is just a mile away in neighbouring Swavesey; this is a direct route west to the market town of St Ives and south to the city of Cambridge, stopping at the Science Park, Train Station and Addenbrooke’s Hospital. Parallel to the Busway is a cycle path which is also popular for runners and walkers.

The community centre, located next to a sports field and children's play area holds many events such as weddings, parties and sports matches. The village green is the perfect place to watch a cricket match, walk the dog or play football.

There are two preschools, a successful primary school and Over is within the catchment for Swavesey Village College, which was rated as outstanding by Ofsted following their most recent inspection.

Along the High Street is a convenience store, village garage, a pub and hairdressers. A butcher, bakery, farm shop and Co-operative are located in the neighbouring village of Willingham, as well as an antique and new furniture sale hall with tea rooms and an outside eatery.

Wonderful walks can be enjoyed in the outlining countryside including orchards which are open to the public, the picturesque fen or along Chain Road to the River Ouse. A short walk to the RSPB Ouse Fen Nature Reserve for bird watching just north of the village with parking and access to the river.

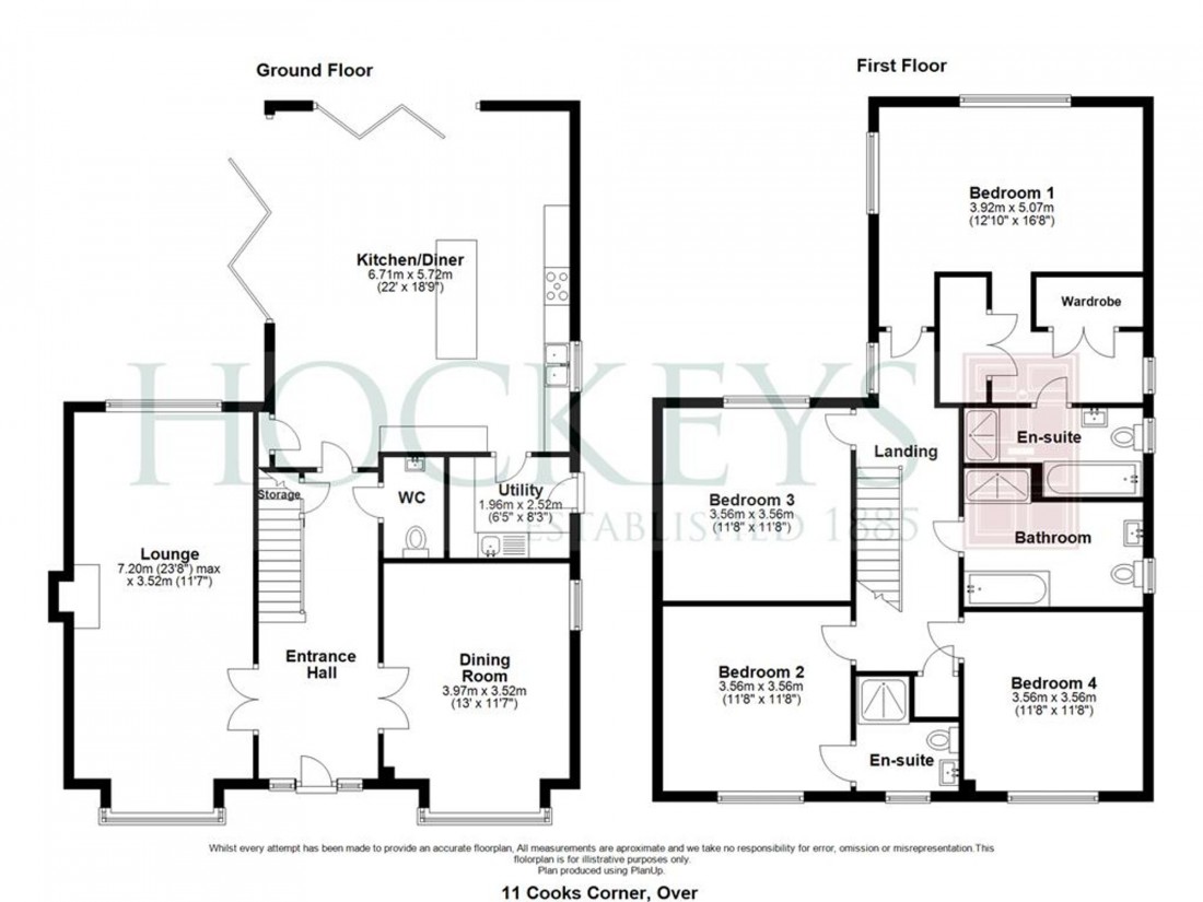
Floorplans

Floorplan for Fen End, Over, CB24

EPC

EPC for Fen End, Over, CB24

Property Description

PLOT 11 with double garage - A small and exclusive development of high quality and bespoke designed semi and detached homes, surrounding a small green and with countryside views to the rear aspect. Based in South Cambridge, Granary Developments are an established, independent building firm specializing in producing high quality new homes. By selecting traditional materials, the exteriors are comfortingly familiar often with double fronted designs and sash style windows, combining very considered and well planned interiors which are tailored to modern day living. This family run business prides itself on building superb properties, with a clear eye for detail and a confidence the standard will surpass expectations. Please note, these images are for illustration purposes only and measurements may vary.

The popular village of Over lies approximately 10 miles (16.09 kilometres) north-west of the university city of Cambridge, providing easy access to A1 and M11. The nearest stop for the Guided Busway is just a mile away in neighbouring Swavesey; this is a direct route west to the market town of St Ives and south to the city of Cambridge, stopping at the Science Park, Train Station and Addenbrooke’s Hospital. Parallel to the Busway is a cycle path which is also popular for runners and walkers.

The community centre, located next to a sports field and children's play area holds many events such as weddings, parties and sports matches. The village green is the perfect place to watch a cricket match, walk the dog or play football.

There are two preschools, a successful primary school and Over is within the catchment for Swavesey Village College, which was rated as outstanding by Ofsted following their most recent inspection.

Along the High Street is a convenience store, village garage, a pub and hairdressers. A butcher, bakery, farm shop and Co-operative are located in the neighbouring village of Willingham, as well as an antique and new furniture sale hall with tea rooms and an outside eatery.

Wonderful walks can be enjoyed in the outlining countryside including orchards which are open to the public, the picturesque fen or along Chain Road to the River Ouse. A short walk to the RSPB Ouse Fen Nature Reserve for bird watching just north of the village with parking and access to the river.

Floorplans

Floorplan for Fen End, Over, CB24

EPC

EPC for Fen End, Over, CB24

Area Information