£300,000

West Fen Road, Ely, CB6

  • 3
  • 3
  • 2

Key Features

  • Single Building Plot
  • Highly Desirable Location
  • Close to Ely City Centre
  • Full Planning Consent for 3 Bed Detached House

Tenure: Freehold

A superb and seldom-available opportunity to acquire a single building plot with full, detailed planning permission, perfectly positioned on the highly sought-after West Fen Road, just moments from Ely city centre. This premium location combines peaceful living with the convenience of excellent access to schools, shops, and commuter routes.

Planning Permission

  • Full consent granted on 11th June 2020 by East Cambridgeshire District Council (Ref: 20/00516/FUL).

  • Conditions 3, 5, 13 and 14 discharged on 9th June 2023 (Ref: 20/00516/DISA).

  • The vendors have already commenced works, including the installation of foul drainage.

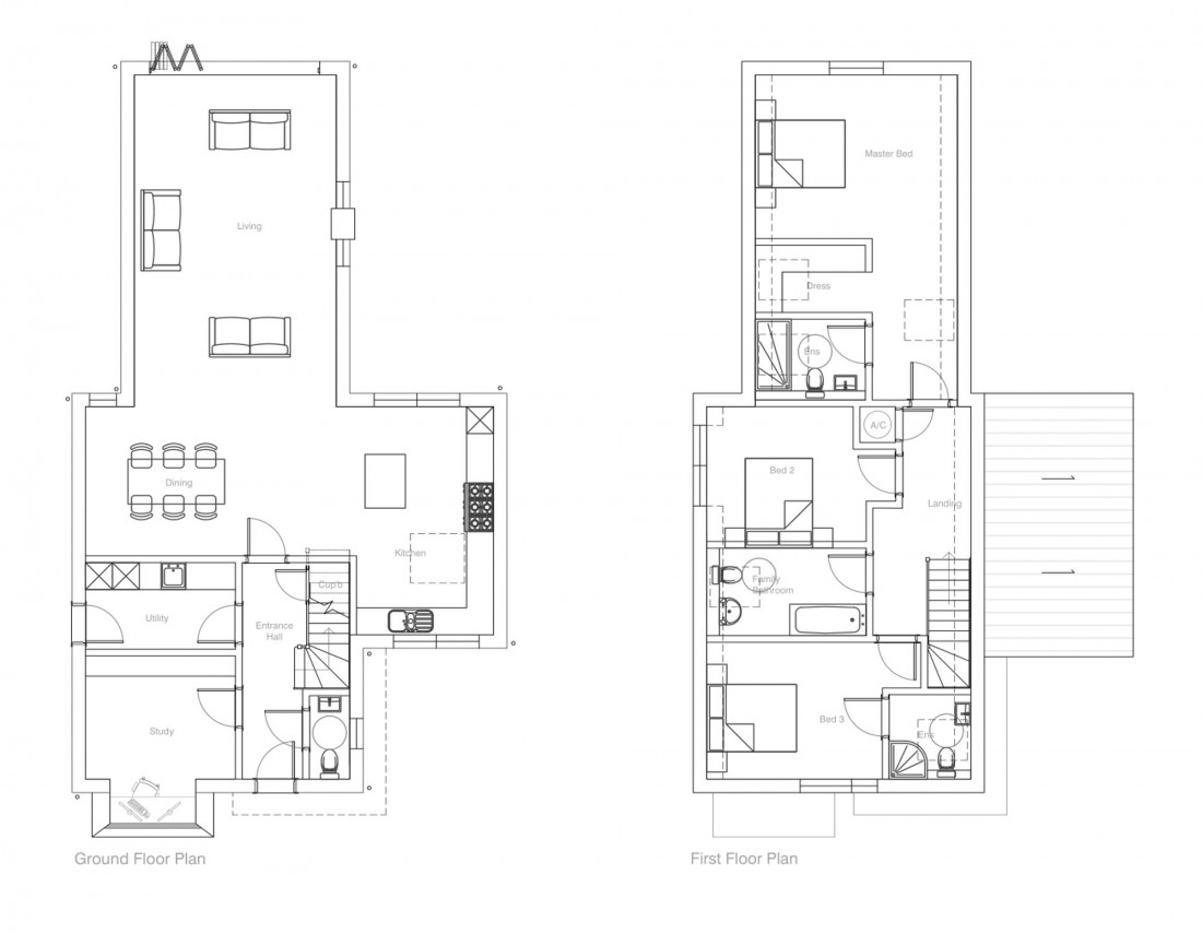
The Proposed Home

Once complete, the property will provide a stylish, contemporary family home of 1,785 sq ft designed for modern living, arranged across two floors:

Ground Floor

  • Entrance hall with cloakroom

  • Dedicated study, ideal for home working

  • Open-plan kitchen/dining area with adjoining utility

  • Bright and spacious living room with direct garden access

First Floor

  • Master bedroom with dressing area and en-suite shower room

  • Bedroom 2 with en-suite shower room

  • Bedroom 3 (double)

  • Family bathroom

The home has been thoughtfully designed with flow and functionality in mind, offering three generous bedrooms and well-proportioned living spaces.

The Plot

The site measures approximately 0.13 acres (sts) and provides scope for a private driveway and landscaped garden, making it a perfect long-term family home.

Services

Mains water, gas, electricity, and drainage are available in West Fen Road (buyers should satisfy themselves as to location and capacity).

Additional Notes

  1. The vendor confirms the Community Infrastructure Levy (CIL) has been paid.

  2. The property will be constructed in line with the approved plans.

Why West Fen Road?

West Fen Road is one of Ely’s most desirable addresses, offering a rare blend of peaceful surroundings and easy access to the city centre, Ely railway station (with direct links to Cambridge and London), and the scenic riverside. This location is ideal for those seeking both convenience and a lifestyle rooted in the charm of Ely.

More About Ely

Ely is a historic cathedral city located about 15 miles (24 km) north of Cambridge. Situated on the banks of the River Great Ouse, Ely offers picturesque views and convenient access to major cities via the A10 and its railway station.

Ely is renowned for its stunning Ely Cathedral, a masterpiece of medieval architecture that attracts visitors from all over the world. The city has a rich history, with numerous heritage sites, museums, and annual events such as the Ely Eel Festival.

The city provides excellent educational facilities, including primary and secondary schools rated 'Good' or 'Outstanding' by Ofsted. Ely College offers secondary and sixth form education, and there are several primary schools throughout the city.

Ely offers a wide range of amenities, including numerous churches, a vibrant market, shops, cafes, restaurants, and pubs. The Ely Leisure Village features a cinema, restaurants, and a sports centre.

Recreational facilities include parks, riverside walks, and the Ely Country Park. The city also has a golf course, swimming pool, and various sports clubs. The nearby Roswell Pits provide opportunities for fishing and birdwatching.

Ely's railway station offers regular services to Cambridge, London, and other major destinations, making it a well-connected city while retaining its historic charm and tranquil atmosphere.

Floorplans

Floorplan for West Fen Road, Ely, CB6

EPC

EPC for West Fen Road, Ely, CB6

Property Description

Tenure: Freehold

A superb and seldom-available opportunity to acquire a single building plot with full, detailed planning permission, perfectly positioned on the highly sought-after West Fen Road, just moments from Ely city centre. This premium location combines peaceful living with the convenience of excellent access to schools, shops, and commuter routes.

Planning Permission

  • Full consent granted on 11th June 2020 by East Cambridgeshire District Council (Ref: 20/00516/FUL).

  • Conditions 3, 5, 13 and 14 discharged on 9th June 2023 (Ref: 20/00516/DISA).

  • The vendors have already commenced works, including the installation of foul drainage.

The Proposed Home

Once complete, the property will provide a stylish, contemporary family home of 1,785 sq ft designed for modern living, arranged across two floors:

Ground Floor

  • Entrance hall with cloakroom

  • Dedicated study, ideal for home working

  • Open-plan kitchen/dining area with adjoining utility

  • Bright and spacious living room with direct garden access

First Floor

  • Master bedroom with dressing area and en-suite shower room

  • Bedroom 2 with en-suite shower room

  • Bedroom 3 (double)

  • Family bathroom

The home has been thoughtfully designed with flow and functionality in mind, offering three generous bedrooms and well-proportioned living spaces.

The Plot

The site measures approximately 0.13 acres (sts) and provides scope for a private driveway and landscaped garden, making it a perfect long-term family home.

Services

Mains water, gas, electricity, and drainage are available in West Fen Road (buyers should satisfy themselves as to location and capacity).

Additional Notes

  1. The vendor confirms the Community Infrastructure Levy (CIL) has been paid.

  2. The property will be constructed in line with the approved plans.

Why West Fen Road?

West Fen Road is one of Ely’s most desirable addresses, offering a rare blend of peaceful surroundings and easy access to the city centre, Ely railway station (with direct links to Cambridge and London), and the scenic riverside. This location is ideal for those seeking both convenience and a lifestyle rooted in the charm of Ely.

More About Ely

Ely is a historic cathedral city located about 15 miles (24 km) north of Cambridge. Situated on the banks of the River Great Ouse, Ely offers picturesque views and convenient access to major cities via the A10 and its railway station.

Ely is renowned for its stunning Ely Cathedral, a masterpiece of medieval architecture that attracts visitors from all over the world. The city has a rich history, with numerous heritage sites, museums, and annual events such as the Ely Eel Festival.

The city provides excellent educational facilities, including primary and secondary schools rated 'Good' or 'Outstanding' by Ofsted. Ely College offers secondary and sixth form education, and there are several primary schools throughout the city.

Ely offers a wide range of amenities, including numerous churches, a vibrant market, shops, cafes, restaurants, and pubs. The Ely Leisure Village features a cinema, restaurants, and a sports centre.

Recreational facilities include parks, riverside walks, and the Ely Country Park. The city also has a golf course, swimming pool, and various sports clubs. The nearby Roswell Pits provide opportunities for fishing and birdwatching.

Ely's railway station offers regular services to Cambridge, London, and other major destinations, making it a well-connected city while retaining its historic charm and tranquil atmosphere.

Floorplans

Floorplan for West Fen Road, Ely, CB6

EPC

EPC for West Fen Road, Ely, CB6

Area Information