Dunstal Field, Cottenham, CB24
£465,000

bedrooms 3 bathrooms1
Floorplan for Dunstal Field, Cottenham, CB24
EPC Graph for Dunstal Field, Cottenham, CB24

Request a Viewing


1About You


@

2Pick a Day


  1. This Week
  2. Next Week
  3. In a Fortnight

3Select a Time



PROPERTY DETAILS

The property is situated within a popular cul-de-sac and occupies a generous plot providing scope for extension.  

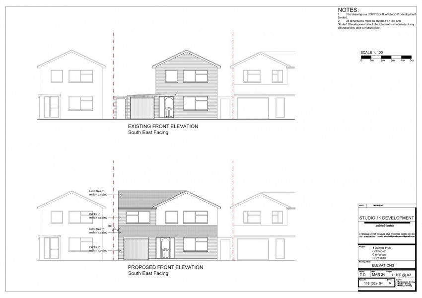
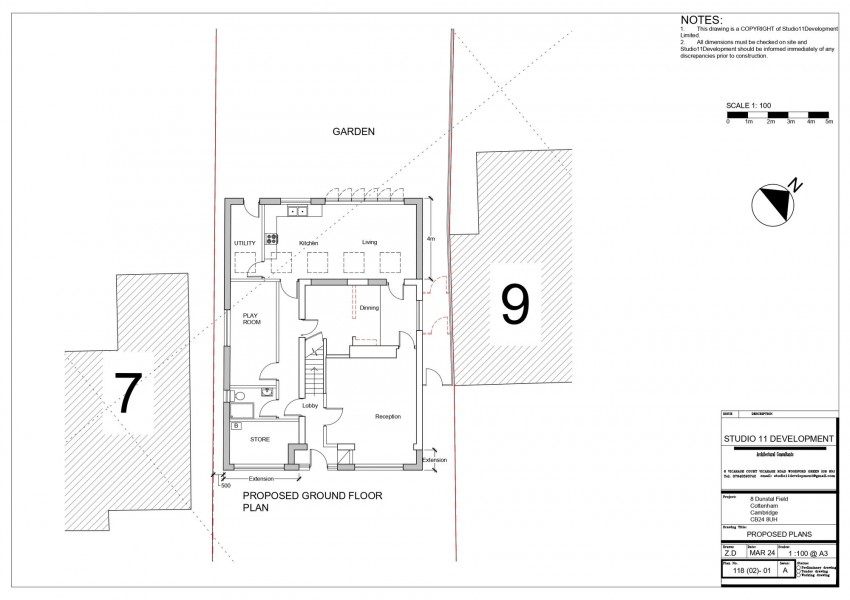
Full planning permission has been granted for the addition of a two-storey side extension and single-storey extensions to the front and rear. Once complete this would provide an extra playroom, an extended living room, and a contemporary open plan kitchen/diner with separate utility to the rear, with four double bedrooms on the first floor. Full details can be found on the South Cambs planning portal reference: 24/01059/HFUL.

The accommodation feels bright and spacious with a light decor and engineered wood/tiled flooring throughout the ground floor. Comprising a front porch opening to a living room with stairs to the first floor. To the rear is a dining room with built-in cupboard housing a Vaillant gas combi boiler, and a kitchen comprising a range of high and low units, a cooker with a 4-ring gas hob, understairs storage, and a glazed door to the driveway.  

On the first floor, there is a landing with a storage cupboard and three bedrooms, with Bedroom 1 benefiting from triple built-in wardrobes with sliding mirrored doors. The modern family bathroom has been refitted and benefits from a bath with a rainfall shower over and a vanity unit wash basin. 

Adjoining the house is a single garage with light and power connected, and a rear door to the garden. The rear garden is generously sized with mature trees to the rear. Laid to lawn with a patio, garden path, and side gate leading to the front drive. A driveway provides parking for two vehicles and a front garden, which could be converted to further parking if required. There is also a large private playing field that residents of Dunstall Field have access to.

LOCATION

Cottenham is one of the largest villages in Cambridgeshire with many facilities available and a wide range of properties, from period townhouses on the high street to more modern developments on the outskirts of the village.  Transport links are excellent as the village is approximately 3 miles (4.83 kilometres) from the A10 and A14. In addition, the village has a regular bus service to both Cambridge and Ely.

Cottenham Primary School is located on Lambs Lane and Cottenham Village College provides both secondary schooling and a sixth form, as well as adult learning classes and numerous after-school events.

Facilities include a gym, sports hall, tennis courts and sports field which are commonly used by the local community.  Cottenham has a broad range of amenities including two doctors’ surgeries, a dental surgery, a library, two mini supermarkets, a newsagent with a post office, pharmacy, butchers, bakers, community coffee shop, fish & chip shop, a hairdressers, barbers and beauty salon, two pubs, an Indian restaurant and a village hall.

CALL OUR OFFICE ON

phone 01954 260 940 MORTGAGE CALCULATOR ARRANGE A VIEWING

Calculate Your Stamp Duty

£

Results

Stamp Duty To Pay:

Effective Rate:

Tax Band % Taxable Sum Tax

FREE instant
ONLINE VALUATION

"SEE HOW MUCH YOUR
PROPERTY IS WORTH"
Rightmove Zoopla Primelocation On The Market The Property Ombudsman