Main Road, West Bilney, PE32
Guide Price £600,000

bedrooms 2 bathrooms1
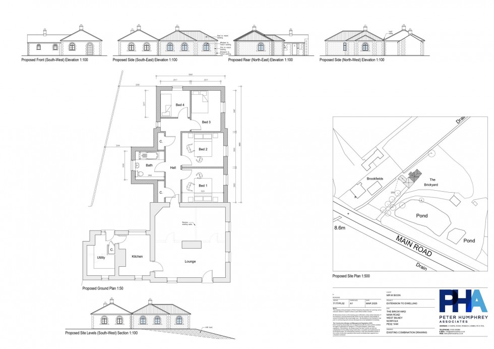
Floorplan for Main Road, West Bilney, PE32 Floorplan for Main Road, West Bilney, PE32
EPC Graph for Main Road, West Bilney, PE32

Request a Viewing


1About You


@

2Pick a Day


  1. This Week
  2. Next Week
  3. In a Fortnight

3Select a Time



PROPERTY DETAILS

GUIDE PRICE £600,000-£650,000

Nestled in the heart of a stunning woodland setting, this charming Norfolk country cottage presents a unique opportunity to immerse oneself in nature.

Featuring a total plot size in excess of 6 acres, this 2 bedroom detached cottage offers a tranquil escape from the hustle and bustle of every-day life.

The property features a lounge, kitchen, utility room, bathroom and two well-appointed bedrooms, with the added advantage of planning permission for a single-story extension, allowing for further customisation to suit individual preferences.

Residents can enjoy leisurely woodland walks surrounded by multiple lakes, while a timber-built cabin and hexagon-shaped hut provide ideal spaces for relaxation or hobbies.

Situated in a sought-after location and offered with no onward chain, this property embodies rural living at its finest.

The outside space complements the property's natural beauty, with a hardstanding drive providing ample parking options and easy access to the expansive land. The land itself is a verdant oasis, with vast swathes of grass, a picturesque lake bordered by mature trees and a diverse array of trees and shrubs adding to the idyllic ambience.

Further enhancing the outdoor experience, the cabin beckons residents to unwind in a serene setting, while easy access to the surrounding land ensures that nature's wonders are always within reach. The convenience of a drive offering multiple off-road parking spaces completes this outdoor haven, offering both practicality and a seamless connection to the peaceful surroundings.

With its unparalleled blend of natural beauty, practical amenities and potential for expansion, this property represents a rare opportunity to embrace a lifestyle of tranquility and harmony with nature.

Services & Info

The cottage has two wood burning stoves that heat the property and power two heated towel rails. It is connected to a cesspit and has mains electric connected. There is planning permission for a single storey extension - 25/00587/F.

Location

Nestled in the picturesque Norfolk countryside, West Bilney is a charming and peaceful village located just a short drive from the historic market town of King’s Lynn. Surrounded by rolling farmland and natural woodland, this tranquil setting offers the perfect balance between rural living and modern convenience.

The village itself is steeped in history and benefits from a close-knit community feel. Nearby, the A47 provides easy access to King’s Lynn (approximately 15 minutes away) and Norwich, making it an ideal location for commuters or those seeking a quieter lifestyle without feeling isolated.

Nature lovers will appreciate the proximity to Thetford Forest, and the nearby River Nar offers scenic walks and an abundance of local wildlife. For everyday amenities, King's Lynn offers a wide selection of shops, schools, restaurants, and rail links to London via direct trains.

West Bilney is ideal for those seeking a countryside retreat, second home, or a forever home in a truly idyllic setting.

CALL OUR OFFICE ON

phone 01945 429 842 MORTGAGE CALCULATOR ARRANGE A VIEWING

Calculate Your Stamp Duty

£

Results

Stamp Duty To Pay:

Effective Rate:

Tax Band % Taxable Sum Tax

FREE instant
ONLINE VALUATION

"SEE HOW MUCH YOUR
PROPERTY IS WORTH"
Rightmove Zoopla Primelocation On The Market The Property Ombudsman