Stocking Drove, Chatteris, PE16
Guide Price £1,000,000

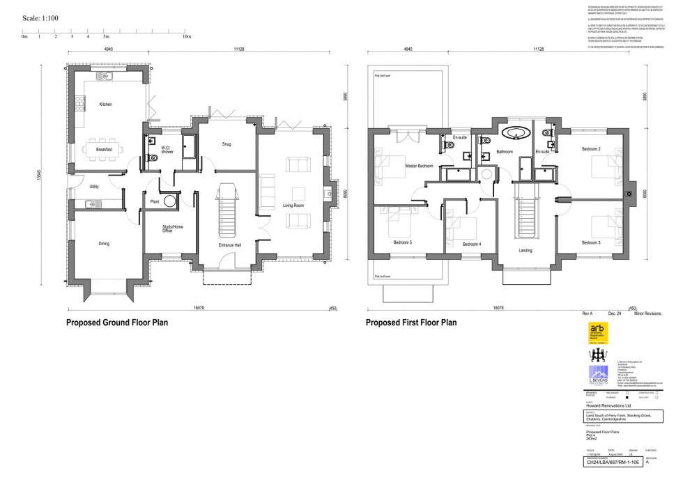
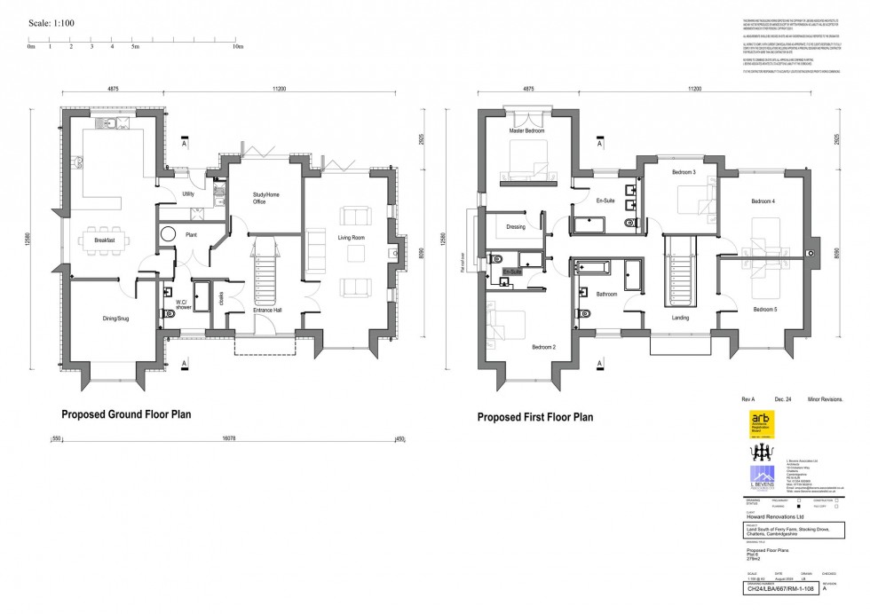
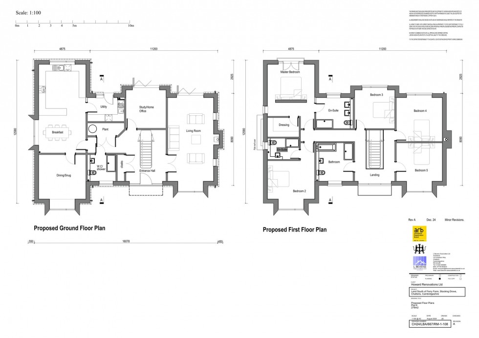
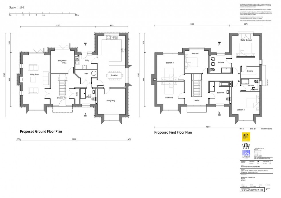
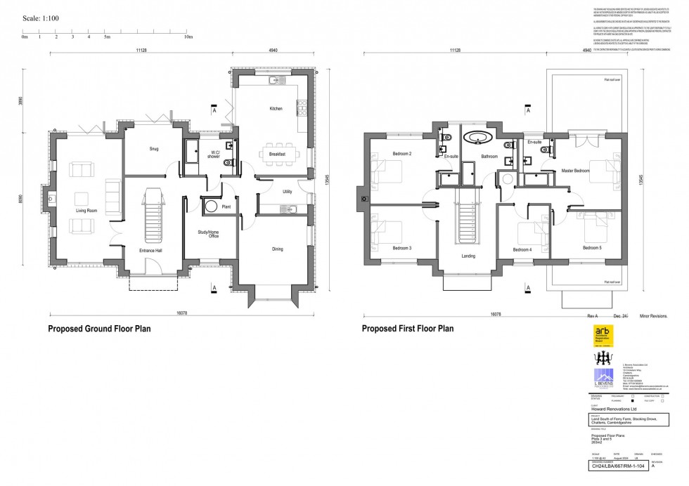
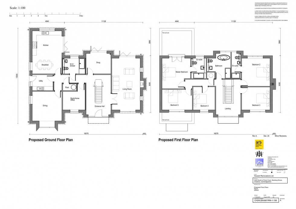
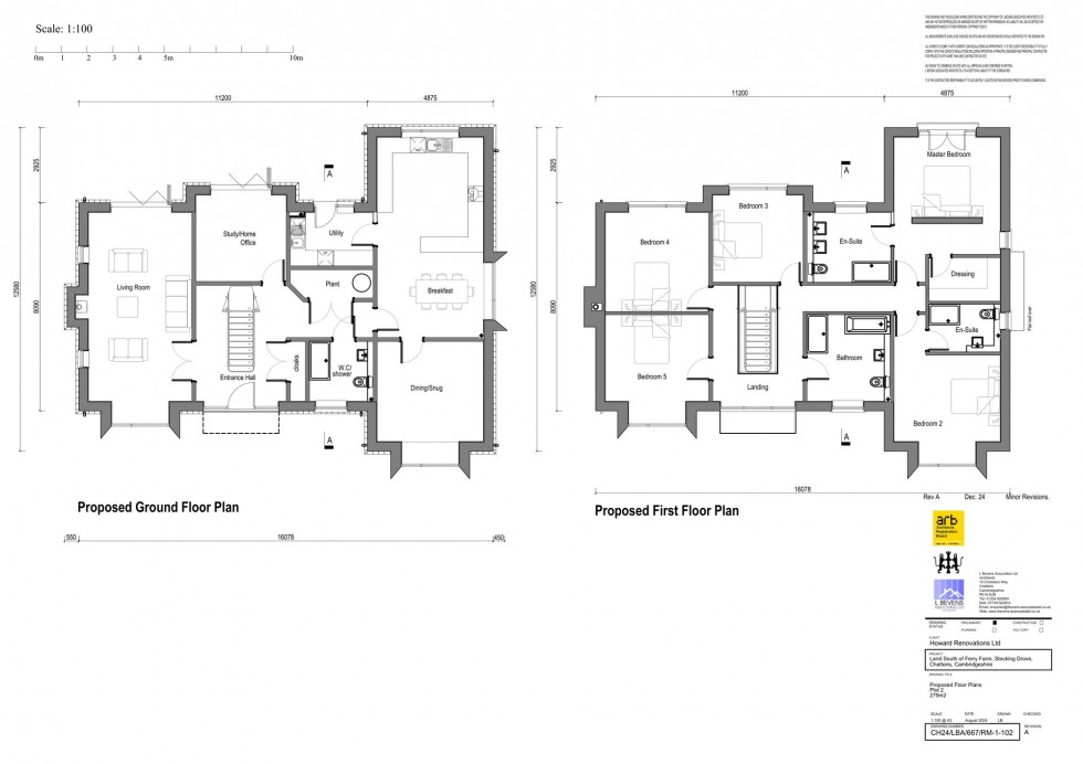
Floorplan for Stocking Drove, Chatteris, PE16 Floorplan for Stocking Drove, Chatteris, PE16 Floorplan for Stocking Drove, Chatteris, PE16 Floorplan for Stocking Drove, Chatteris, PE16

Request a Viewing


1About You


@

2Pick a Day


  1. This Week
  2. Next Week
  3. In a Fortnight

3Select a Time



PROPERTY DETAILS

An attractive opportunity to purchase a residential development site with planning consent for the construction of 5 × 5 bedroomed detached properties located off London Road just outside Chatteris.

Planning - The original outline planning consent was granted by Fenland District Council on the 7th July 2023 for the erection of up to six detached dwellings with garages and new vehicular accesses (reference F/YR23/0077/O)

A Reserved Matters Consent was granted on the 3rd June 2025 for the appearance and landscaping of five properties (reference F/YR25/0185/RM)

Each of the five plots is approximately 869 square metres / 9,354 square feet

Once built the properties at plots 2 and 6 will consist of 279 square metres / 3,003 square feet of accommodation and the properties at plots 3, 4 and 5 will be 263 square metres / 2,831 square feet).

The vendor may consider selling plots separately.

CALL OUR OFFICE ON

phone 01353 880 797 MORTGAGE CALCULATOR ARRANGE A VIEWING

Calculate Your Stamp Duty

£

Results

Stamp Duty To Pay:

Effective Rate:

Tax Band % Taxable Sum Tax

FREE instant
ONLINE VALUATION

"SEE HOW MUCH YOUR
PROPERTY IS WORTH"
Rightmove Zoopla Primelocation On The Market The Property Ombudsman